Previous Next

COMPONENT TESTING

Testing Hints

The following procedures assume that the technician has checked the following:

  1. Continuity of all harness wires.
  2. Wiper motor and wiper/washer switch connectors are mated correctly.
  3. If the wiper motor operates but the wipers do not; check the wiper linkage and wiper motor crank arm.
  4. Wiper motor-to-dash mounting screws tight for good ground.
  5. Fuses are good.
  6. Washer hoses clear, fluid in tank.

    NOTE: Prior to starting the diagnosis procedure, it is very important to confirm the reported condition with a complete operational check including the washer system.

Windshield Wiper Motor Test
  1. Using an ohmmeter, check for continuity between the wiper motor terminals as shown.

    Fig. 1: Windshield wiper motor continuity test — MPV

    Fig. 2: Windshield wiper motor terminal identification and continuity check — MPV

    Fig. 3: Windshield wiper motor operational check — MPV

    Fig. 4: Windshield wiper motor operational check — MPV

    Fig. 5: Windshield wiper motor continuity test — B series pick-ups

    Fig. 6: Windshield wiper motor terminal identification and continuity check — B series pick-ups

    Fig. 7: Windshield wiper motor operational check — B series pick-ups

    Fig. 8: Windshield wiper motor operational check — B series pick-ups

  2. Apply battery voltage and check the operation of the wiper motor as indicated.
  3. Replace the wiper motor, if not as specified.
Rear Wiper Motor Test
  1. Using an ohmmeter, check for continuity between the wiper motor terminals a and b.
  2. Verify operation of the motor when battery voltage is connected to terminal a and terminal b is connected to ground.
  3. Disconnect the ground from terminal b, and immediately connect the ground to the motor body. Check that the motor shaft reaches the park position and that there is continuity.
  4. Replace the wiper motor, if not as specified.

    Fig. 9: Rear wiper motor terminal identification — MPV

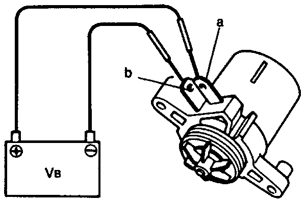
Windshield Washer Motor Test
  1. Using an ohmmeter, check for continuity between the washer motor terminals.

    Fig. 10: Windshield washer motor terminals — MPV

    Fig. 11: Windshield washer motor terminals — B series pick-ups

  2. Apply battery voltage to terminal b and ground to terminal a, and verify the operation of the motor.
  3. Replace the wiper motor, if not as specified.
Rear Washer Motor Test
  1. Using an ohmmeter, check for continuity between the washer motor terminals a and b.
  2. Verify operation of the motor when battery voltage is connected to terminal b and terminal a is connected to ground.
  3. Replace the washer motor, if not as specified.

    Fig. 12: Rear washer motor terminals — MPV

Windshield Wiper Switch Test
  1. Using an ohmmeter, check for continuity between the front wiper/washer switch terminals as shown.

    Fig. 13: Front windshield wiper/washer switch continuity test — MPV

    Fig. 14: Front windshield wiper/washer switch continuity test — MPV

Rear Wiper Switch Test
  1. Using an ohmmeter, check for continuity between the rear wiper/washer switch terminals as shown.

    Fig. 15: Rear wiper/washer switch continuity test — MPV

    Fig. 16: Rear wiper/washer switch continuity test — MPV

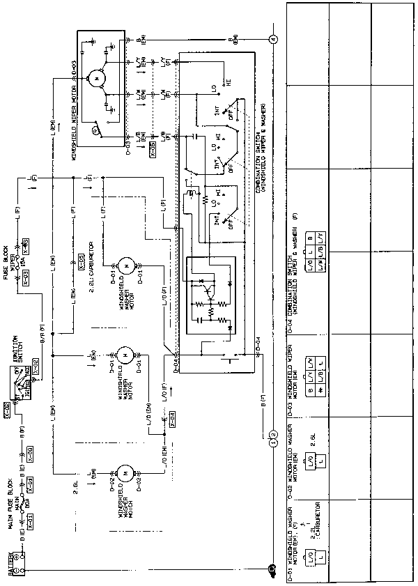
    Fig. 17: Windshield washer/wiper electrical schematic — MPV

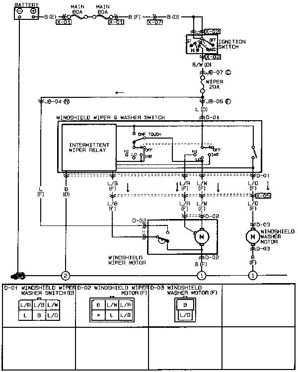
    Fig. 18: Windshield washer/wiper electrical schematic — B series pick-ups

    Fig. 19: Rear washer/wiper electrical schematic — MPV

Previous Next