Code No.B1411: Passenger’s (front) air bag module (squib) system (open- circuited in the squib circuit)

| caution |
If diagnosis code B1411 is set in the SRS-ECU, always diagnose the CAN main bus line.
|
OPERATION
- The SRS-ECU judges how severe a collision is by detecting signals from the front air bag analogue G-sensor. If the impact is over a predetermined level, the SRS-ECU sends an ignition signal. At this time, if the front air bag safing G-sensor is on, the SRS air bag will inflate.
- The ignition signal is input to the air bag module to inflate the air bag.
DIAGNOSIS CODE SET CONDITIONS
This diagnosis code is set if there is abnormal resistance between the input terminals of the passenger’s (front) air bag module (squib).
PROBABLE CAUSES
- Open circuit in the passenger’s (front) air bag module (squib) circuit
- Improper connector contact
- Malfunction of the SRS-ECU
- Malfunction of the passenger’s air bag cut off switch
|
|
STEP 1. M.U.T.-III CAN bus diagnostics.
|
|
|
| warning |
Since the radiator fan rotates during CAN bus line diagnostics, make sure that no one is servicing the engine compartment before diagnosing the CAN bus line. Since the CAN communication stops when diagnosing the CAN bus line, the ETACS-ECU detects the time-out of the engine-ECU, and activates the radiator fan to prevent overheating as fail-safe.
|
|
|
|
Use the M.U.T.-III to check the CAN bus lines.
|
|
|
Q.
Is the CAN bus line found to be normal?
|
|
|
Go to Step 2.
|
|
|
|
|
|
Repair the CAN bus line (Refer to GROUP 54C, Troubleshooting - Can Bus Diagnosis Table ).
|
|
|
|
|
|
STEP 2. Check whether the diagnosis code is reset.
|
|
|
Check again if the diagnosis code is set.
|
|
|
(1)Erase the diagnosis code.
|
|
|
(2)Turn the ignition switch to the "ON" position.
|
|
|
(3)Check if the diagnosis code is set.
|
|
|
(4)Turn the ignition switch to the "LOCK" (OFF) position.
|
|
|
Q.
Is the diagnosis code set?
|
|
|
Go to Step 3.
|
|
|
|
|
|
There is an intermittent malfunction such as poor engaged connector(s) or open circuit (Refer to GROUP 00, How to Cope with Intermittent Malfunction ).
|
|
|
|
|
|
STEP 3. Check the passenger’s air bag cut off switch.
|
|
|
(1)Disconnect the passenger’s (front) air bag module connector B-10.
|
|
|
(2)Check the passenger’s air bag cut off switch (Refer to ).
|
|
|
Q.
Is the diagnosis code set?
|
|
|
Go to Step 4.
|
|
|
|
|
|
Replace Passenger’s air bag cut off switch (Refer to ).
|
|
|
|
|
|
STEP 4. Check the passenger’s (front) air bag module (M.U.T.-III diagnosis code).
|
|
|
(1)Disconnect the negative battery terminal.
|


|
(2)Disconnect the passenger’s (front) air bag module connector B-10.
|

|
(3)Connect special tool dummy resistor (MB991865) to special tool resistor harness (MB991866). (4)
| caution |
Do not insert a test probe into the terminal from its front side directly, as the connector contact pressure may be weakened.
|
Insert special tool resistor harness (MB991866) into the harness side connector B-10 (terminal No.1 and 2) by backprobing. (5)Check that the passenger’s air bag cut off switch is in the "ON" position. (6)Connect the negative battery terminal. (7)Erase the diagnosis code memory, and check the diagnosis code.
Q.
Is diagnosis code B1411 set?
Go to Step 5.
Replace the passenger’s (front) air bag module (Refer to ).
|
|
|
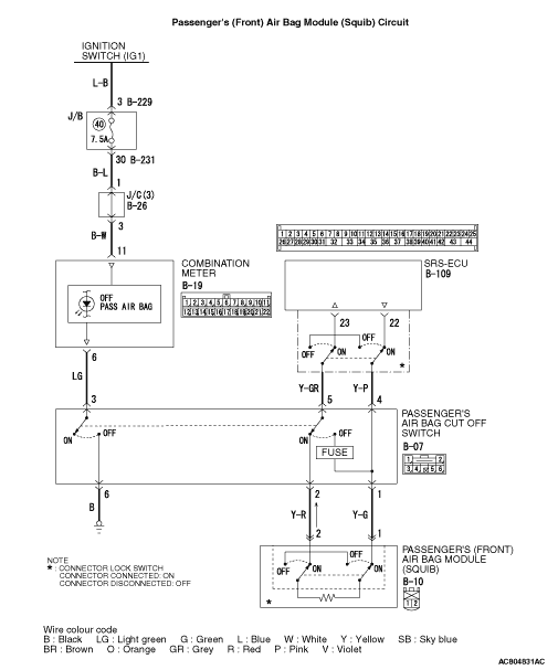
STEP 5. Resistance measurement between the SRS-ECU connector B-109 (terminal No.22 and 23) and the passenger’s (front) air bag module connector B-10 (terminal No.1 and 2).
|
|
|
(1)Disconnect the negative battery terminal.
|

|
(2)Disconnect SRS-ECU connector B-109.
|


|
(3)
| danger |
To prevent the air bag from deploying unintentionally, disconnect the passenger’s (front) air bag module connector B-10 to short the squib circuit.
|
Disconnect the passenger’s (front) air bag module connector B-10.
|

|
(4)
| caution |
Insert an insulator such as a cable tie to a depth of 4mm (0.16 inch) or more, otherwise the short spring will not be released.
|
Insert a cable tie [3 mm wide, 0.5 mm thick] between terminal 43 and the short spring to release the short spring. (5)Check that the passenger’s air bag cut off switch is "ON" position.
|

|
(6)
| caution |
Do not insert a test probe into the B-10 connector terminal from its front side directly as the connector contact pressure may be weakened.
|
Resistance measurement between the following terminals.
- SRS-ECU connector B-109 (terminal No.22) and the passenger’s (front) air bag module connector B-10 (terminal No.1)
- SRS-ECU connector B-109 (terminal No.23) and the passenger’s (front) air bag module connector B-10 (terminal No.2)
OK: Continuity (less than 2 Ω)
Q.
Are the check results normal?
Then go to Step 6.
Repair the harness wires between SRS-ECU connector B-109 (terminal No.22 and 23) and passenger’s (front) air bag module connector B-10 (terminal No.1 and 2).
|
|
|
STEP 6. Check whether the diagnosis code is reset.
|
|
|
Q.
Is diagnosis code B1411 set?
|
|
|
Replace the SRS-ECU (Refer to ).
|
|
|
|
|
|
An intermittent malfunction is suspected (Refer to GROUP 00, How to Cope with Intermittent Malfunction ).
|
|
|
|