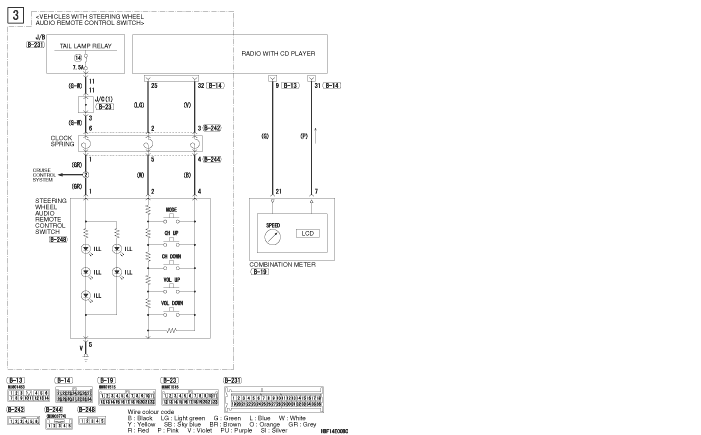
AUDIO SYSTEM <COLT (RH DRIVE VEHICLES)>






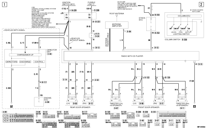
AUDIO SYSTEM <COLT (RH DRIVE VEHICLES)> (CONTINUED)