 REMOVAL
■ CAUTION ■
- Never use an impact wrench to remove or install the mounting bolts and nut.
- Always use the specified bolts and nut with the surface finished.
- Never reuse the removed mounting bolts and nut.
|
: Vehicle front
|
|
|
|
|
|
: Adhesive exfoliated position
|
|
|
|
|
Refer to ″How to use this manual″Components for the symbols shown in the figure.
|
- Remove all of the remaining 30 bolts except the bolts and nut of (A) to (E) shown in the figure.
■ CAUTION ■ Tighten 2 bolts (F) together with the parcel shelf reinforcement.
- Loosen the mounting bolts and nut of (A) to (E) to safely unglue the adhesive of seatback support.
- Set the temperature gauge (the infrared noncontact temperature gauge is recommended for temperature management) to the seatback support, and then heat up to 110°C (230°F) using halogen heater, etc.
■ CAUTION ■ The heating temperature should not exceed 110°C (230°F).
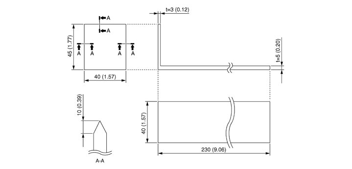
- Use an L-chisel shaped as shown in the figure and insert it to either the left or right gap between the vehicle body and seatback support on the top of bonding area while heating the seatback support. Slightly unglue the adhesive from the upper side to the lower side to remove the seatback support.
■ CAUTION ■ Never damage the seatback support and the portions where the seatback support is bonded.

- Eliminate the adhesive that remains on the seatback support and the portions where the seatback support is bonded with a disc sander.
- If the coating on the joint surface with the vehicle is peeled off, apply epoxy primer on the surface to prevent electric corrosion.
 INSTALLATION
|