Honda 2001 Body Electrical22A-1
Accessory Power Socket 22A-238
Previous Page Next Page



Accessory Power Socket 22A-238

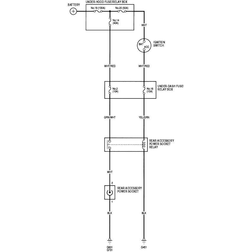
Circuit Diagram


Test/Replacement 22A-239

  1. Carefully pry the accessory power socket (A) out from the left rear side trim panel.


  2. Disconnect the 2P connector (A) from the socket.


  3. Inspect the connector terminals to be sure they are all making good contact.
  4. If the terminals are bent, loose or corroded, repair them as necessary, and recheck the system.
  5. If the terminals look OK, go to step 4.
  6. Turn the ignition switch to ACC (I), and check for voltage between the No. 1 and No. 2 terminals.
  7. There should be battery voltage.
  8. If there is no battery voltage, check for:
  9. poor ground (G451, G601, G701).
  10. an open in the wire.
  11. blown No. 18 (15A) fuse in the under-dash fuse/relay box.
  12. blown No. 2 (10 A) fuse in the under-dash fuse/relay box.
  13. faulty rear accessory power socket relay.



Honda 2001 Body Electrical22A-1
Accessory Power Socket 22A-238
Previous Page Next Page