Honda 2001 Engine Cooling10-1
Fan Controls10-11
Previous Page Next Page



Fan Controls10-11

Component Location Index


1

UNDER-HOOD FUSE/RELAY BOX

2

CONDENSER FAN RELAY

Test, page 21-38

3

RADIATOR FAN RELAY

Test, page 10-14

4

CONDENSER FAN ASSEMBLY

Motor Test, page 10-4

5

RADIATOR FAN SWITCH

Test, page 10-17 ; Replacement, page 10-17

6

RADIATOR FAN ASSEMBLY

Motor Test, page 10-4




Symptom Troubleshooting Index10-12

Before performing any troubleshooting procedures check:

  • Fuses
  • Grounds
  • Cleanliness and tightness of all connectors

    SYMPTOM

    PROCEDURE

    Radiator fan does not run at all Radiator Fan Circuit Troubleshooting (see page 10-14) .
    Radiator fan does not run for engine cooling, but it runs with A/C on Radiator Fan Switch Circuit Troubleshooting (Open) (see page 10-16) .
    Radiator fan runs with ignition switch ON (II), A/C off, and engine temperature below 93°C (199°F) Radiator Fan Switch Circuit Troubleshooting (Short) (see page 10-16) .




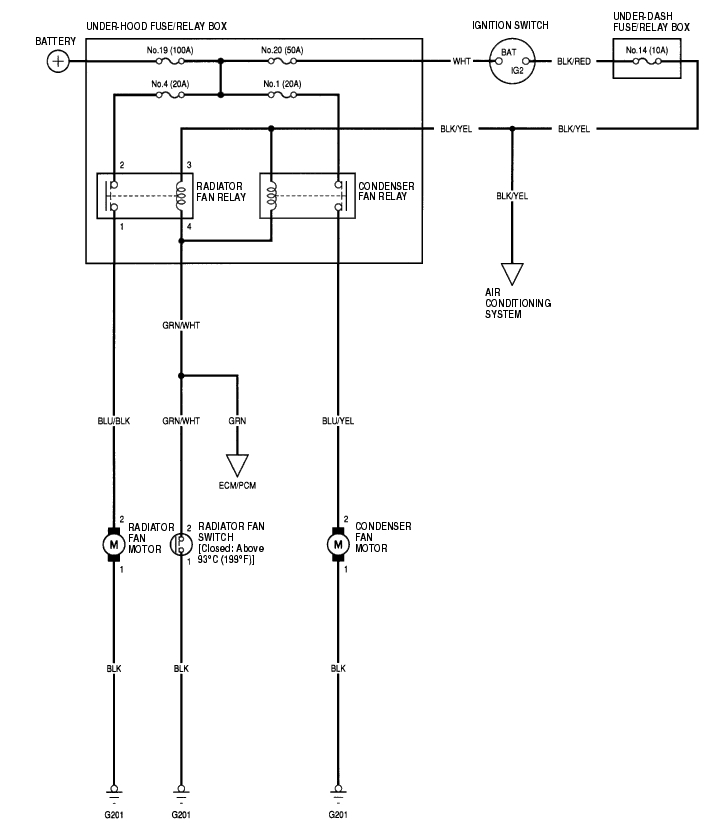
  • Circuit Diagram10-13


    Radiator Fan Circuit Troubleshooting10-14

    1. Check the No. 4 (20A) fuse in the under-hood fuse/relay box, and the No. 14 (10A) fuse in the under-dash fuse/relay box.

    Is the fuse (s) OK?


    Yes : Go to step 2.


    No : Replace the fuse (s) and recheck.


    1. Remove the radiator fan relay from the under-hood fuse/relay box, and test it (see page 10-17) .

    Is the relay OK?


    Yes : Go to step 3.


    No : Replace the radiator fan relay.


    1. Measure the voltage between the No. 2 terminal of the radiator fan relay 4P socket and body ground.

    RADIATOR FAN RELAY 4P SOCKET


    Terminal side of female terminals

    Is there battery voltage?


    Yes : Go to step 4.


    No : Replace the under-hood fuse/relay box.


    1. Connect the No. 1 and No. 2 terminals of the radiator fan relay 4P socket with a jumper wire.

    RADIATOR FAN RELAY 4P SOCKET


    Terminal side of female terminals

    Does the radiator fan run?


    Yes : Go to step 5.


    No : Go to step 6.


    1. Disconnect the jumper, and turn the ignition switch ON (II). Check for voltage between the No. 3 terminal of the radiator fan relay 4P socket and body ground.

    RADIATOR FAN RELAY 4P SOCKET


    Terminal side of female terminals

    Is there battery voltage?


    Yes : Go to step 9.


    No : Check for an open in the wire between the under-hood fuse/relay box and under-dash fuse/relay box.


    10-15

    1. Disconnect the radiator fan motor 2P connector.
    2. Check for continuity between the No. 1 terminal of the radiator fan relay 4P socket and the No. 2 terminal of the radiator fan motor 2P connector.

    RADIATOR FAN RELAY 4P SOCKET


    Is there continuity?


    Yes : Go to step 8.


    No : Repair open in the wire between the under-hood fuse/relay box and the radiator fan motor 2P connector terminal No. 2.


    1. Check for continuity between the No. 1 terminal of the radiator fan motor 2P connector and body ground.

    RADIATOR FAN MOTOR 2P CONNECTOR


    Wire side of female terminals

    Is there continuity?


    Yes : Replace the radiator fan motor.


    No : Check for an open in the wire between radiator fan motor 2P connector terminal No. 1 and body ground. If the wire is OK, check for a poor ground at G201.


    1. Reinstall the radiator fan relay.
    2. Disconnect the radiator fan switch 2P connector.
    3. Connect the No. 1 and No. 2 terminals, of the radiater fan switch 2P connector with a jumper wire.


    Does the radiator fan run?


    Yes : Replace the radiator fan switch.


    No : Go to step 12.


    1. Remove the jumper wire, and measure the voltage between the No. 2 terminal of the radiator fan switch connector and body ground.


    Is there battery voltage?


    Yes : Check for an open in the wire between radiator fan switch 2P connector terminal No. 1 and body ground. If the wire is OK, check for a poor ground at G201.


    No : Repair open in the wire between the radiator fan switch terminal No. 2 and the under-hood fuse/relay box.


    Radiator Fan Switch Circuit Troubleshooting (Open)10-16

    1. Disconnect the radiator fan switch 2P connector.
    2. Turn the ignition switch ON (II).
    3. Measure voltage between the No. 2 terminal of the radiator fan switch 2P connector and body ground.


    Is there battery voltage?


    Yes : Go to step 4.


    No : Repair open in the wire between the radiator fan switch 2P connector terminal No. 2 and under-hood fuse/relay box.


    1. Turn the ignition switch OFF, and check for continuity between the No. 1 terminal of the radiator fan switch 2P connector and body ground.


    Is there continuity?


    Yes : Replace the radiator fan switch.


    No : Check for an open in the wire between the radiator fan switch 2P connector terminal No. 1 and body ground. If the wire is OK, check for a poor ground at G201.


    Radiator Fan Switch Circuit Troubleshooting (Short)10-16

    1. Remove the radiator fan relay from the under-hood fuse/relay box, and test it (see page 10-17) .

    Is the relay OK?


    Yes : Go to step 2.


    No : Replace the radiator fan relay.


    1. Remove the radiator fan switch, and test it (see page 10-17) .

    Is the radiator fan switch OK?


    Yes : Go to step 3.


    No : Replace the radiator fan switch.


    1. Disconnect the negative cable from the battery.
    2. Disconnect Engine Control Module (ECM)/Powertrain Control Module (PCM) connector B (24P) and the under-hood fuse relay box 14P connector.
    3. Check for continuity between the No. 2 terminal of the radiator fan switch 2P connector and body ground.


    Is there continuity?


    Yes : Repair short in the wire between the radiator fan switch 2P connector terminal No. 2 and under-hood fuse/relay box.


    No : Replace the under-hood fuse/relay box.


    Radiator Fan Switch Test10-17

    NOTE: Bleed air from the cooling system after installing the radiator fan switch (see page 10-6) .

    1. Remove the radiator fan switch from the radiator (see page 10-17) .
    2. Suspend the radiator fan switch (A) in a container of water as shown.


    3. Heat the water, and check the temperature with a thermometer. Do not let the thermometer (B) touch the bottom of the hot container.
    4. Measure the continuity between terminal No. 1 and terminal No. 2 according to the table.


    Radiator Fan Switch Replacement10-17

    1. Disconnect the radiator fan switch connector, then remove the radiator fan switch (A).


    2. Install the radiator fan switch with a new O-ring (B).



    Honda 2001 Engine Cooling10-1
    Fan Controls10-11
    Previous Page Next Page